rez de pavillon,
fontaine le comte
🔎️ le projet en 3 mots
![]()

👀 r.d.v au r.d.c ?
activation des espaces publics par le logement. ( pièces en plus pour télétravail - intergénérationnel et services aux habitants).
activation des espaces publics par le logement. ( pièces en plus pour télétravail - intergénérationnel et services aux habitants).
💬️ la mission d’isla
![]()

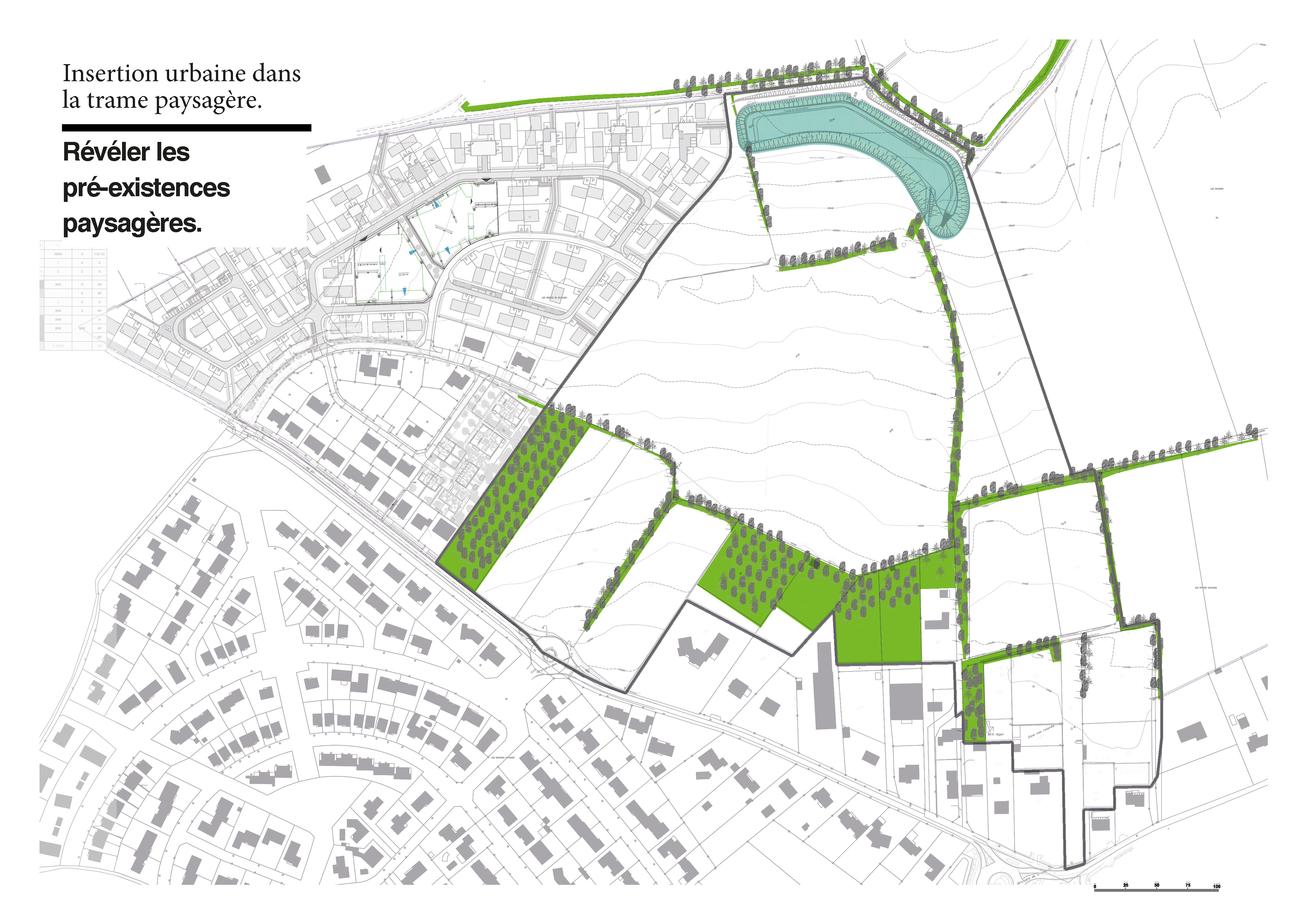
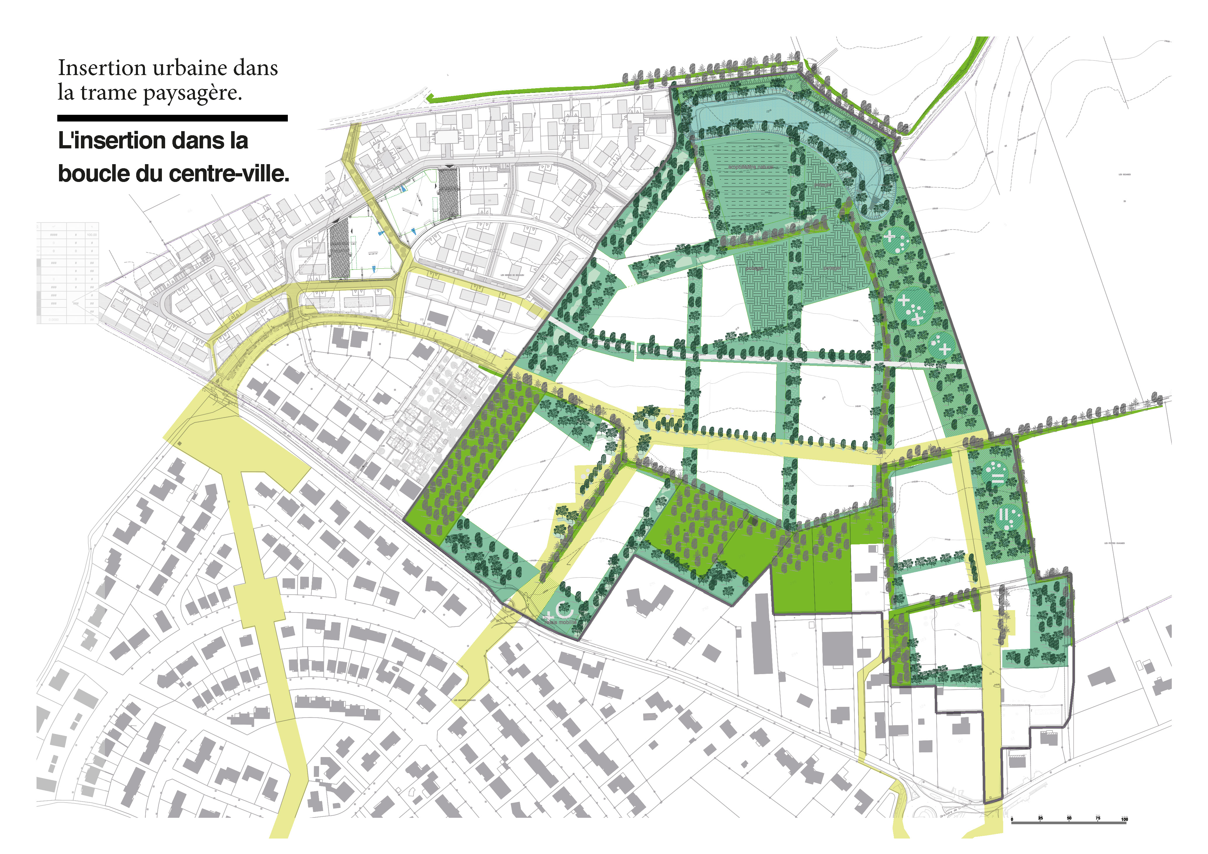
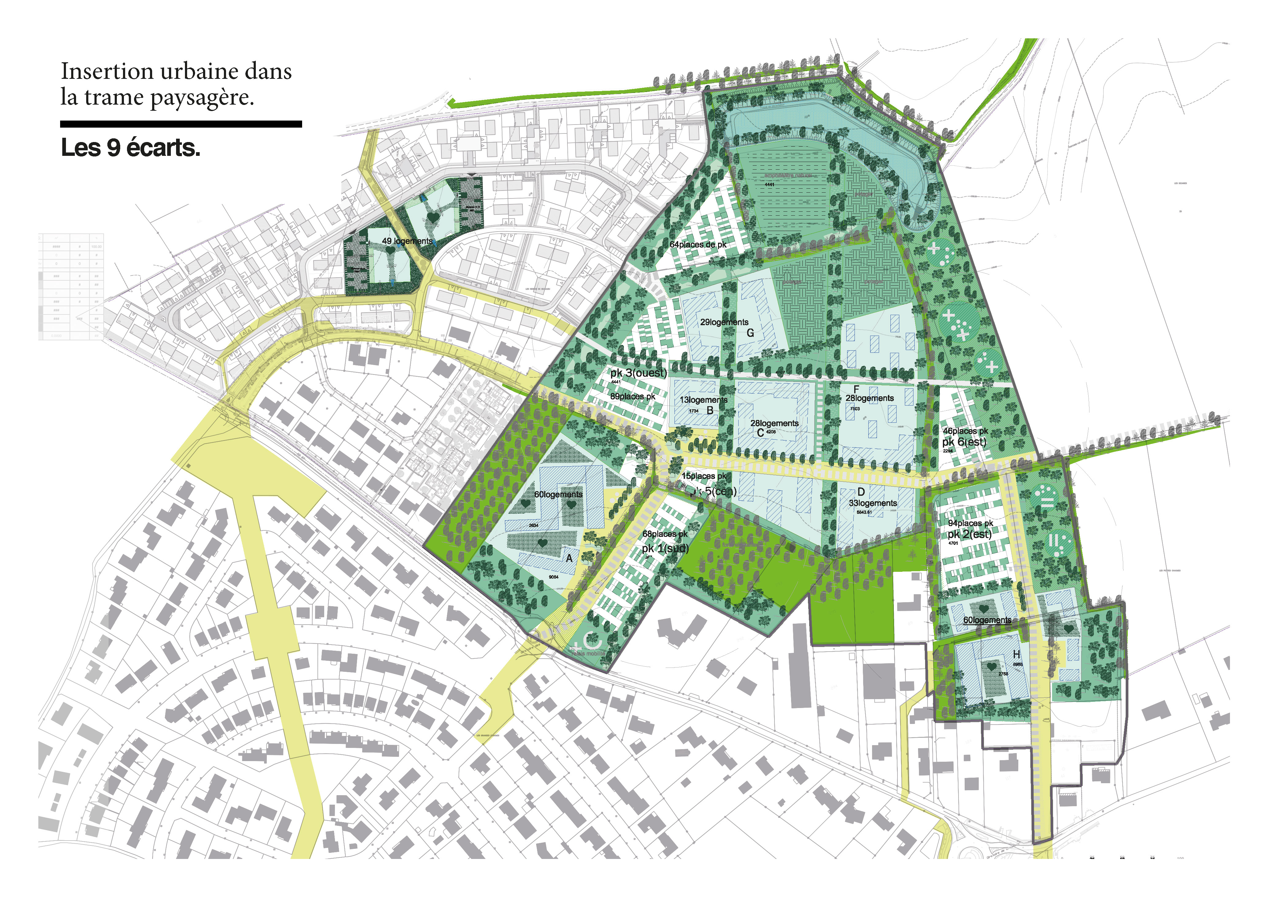
Un écart est un lieu de peuplement isolé, une ferme n’ayant pas de voisins. C’est un synonyme de hameaux. A Fontaine le comte, les “écarts” définissent des centralités aux formes urbaines denses et remarquables en dialogue avec le paysage cultivé qui constrastent avec la marée pavillonaire qui occupe 90% du tissu urbanisé depuis les années 50. Comment dès lors réfléchir à l’avenir de ce territoire “sous pression”?





































